ARQUITETURA
Projeto do Edifício da Estação Elevatória de Esgoto Zoológico- Pampulha, cliente COPASA.
A estação elevatória do Zoológico / Pampulha, localizada no bairro Braúnas, bombeia o esgoto da margem esquerda para a margem direita da lagoa, de onde é levado para a unidade de tratamento.
A edificação comporta a equipe de operação das diversas elevatórias da empresa de saneamento com seus respectivos equipamentos de manutenção, sistema supervisório, sala de reunião e unidades de apoio.
Foto: Edifício da Estação Elevatória de Esgoto Zoológico- Pampulha


Portaria da ETE Arrudas
Projeto da Portaria da ETE Arrudas- Cliente COPASA. Com arquitetura sustentável alterando minimamente o meio. Foi realizada com um aproveitamento racional dos recursos necessários para iluminar e ventilar os ambientes de trabalho contínuo (24 horas de trabalho no local). Construída reduzindo desperdícios. Uso de materiais considerados ecologicamente corretos.
Foto: Portaria da ETE Arrudas -MG
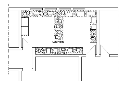
Layout do Laboratório da ETE do Porto de Santos- São Paulo Cliente WATER PORT
O Layout de um Laboratório de ETE respeita fatores humanos e princípios ergonômicos. Além disso, vidrarias específicas são manuseadas nas cubas e bancadas. Nesses casos, um domínio da técnica de projetar é necessário para promover ganhos sinérgicos na produtividade.
Foto: Planta humanizada da Portaria da ETE Arrudas


Layout das bancadas , especificação das vidrarias e localização dos equipamentos – ETE do Porto de Santos
Residências
O detalhamento nas residências e ambientes corporativos são feitos personalizando o espaço de acordo com o perfil e os sonhos do cliente. A idéia é trabalharmos sempre juntos
Foto: Residência Marlene- Condomínio Retiro das Pedras- MG


Residência Gilda e Sandro Junqueira MG – Detalhamento
Efeitos Luz e Sombra – Croquis de Acesso – Residência Alexandre e Helenise- Belo Horizonte

